Sign up to get new listings emailed daily! JOIN SIGN IN
Josh Laber
REALTOR®
Facebook Icon LinkedIn Icon Realtor.com Icon Zillow Icon Twitter Icon 

Tbd County Road 18 , Nisswa, MN 56468

New - 41 Hours Ago

19 Total Photos [Click to View All]

Listed By

Agency Name: Larson Group Real Estate/Kelle
Agency Phone: 218-692-6920

Shown By

Agent Name: Josh Laber
Agent Phone: (507) 316-7873
Agency Title: Counselor Realty

IDX logo

Property Description

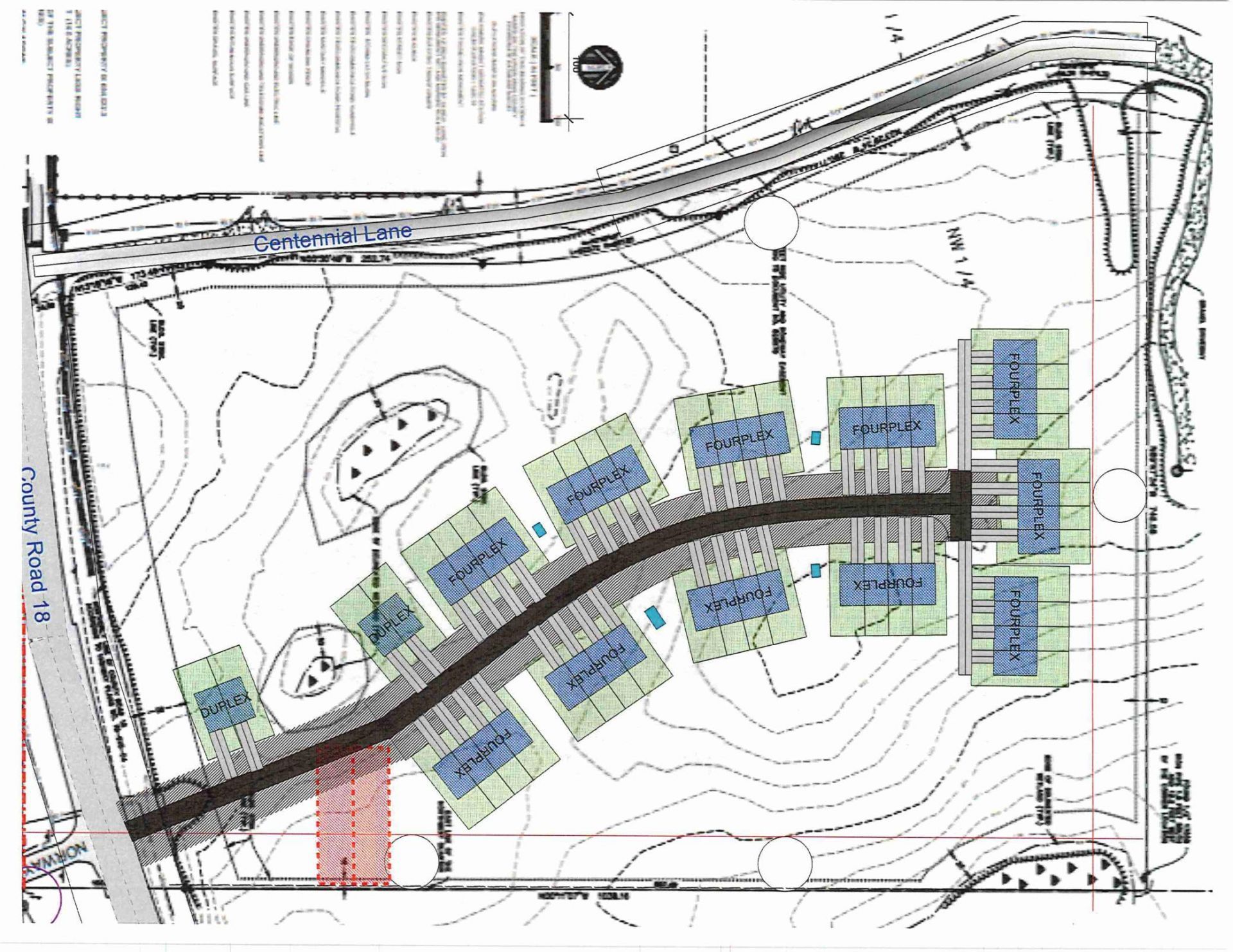
Extremely unique opportunity for a Planned Unit Development within the City of Nisswa, in the heart of the Brainerd Lakes area of Minnesota. This 15-acre parcel sits within city limits and walking distance to town. The site is gently rolling high ground. The proposed planned unit development has received a positive response from City Planning to a proposed 48 unit, 4 plex development. The attached sketches and site plans give preliminary options. Significant flexibility and upside development potential exists in this growth orientated outstate MN community.

Tbd County Road 18 | MLS# 7048718

This land located at Tbd County Road 18 , Nisswa, MN 56468 is currently listed for sale with an asking price of $665,000. The property has approximately 15.01 Acres. Tbd County Road 18 is located within the Brainerd school district. Search Nisswa real estate on jlaber.counselorrealtyofrochester.com today.

Property Features

Property Type: Land - Residential
Lot Size: 15.01 Acres
Taxes: $656

Feature Descriptions

Days on Site: 1
Improvements: Paved Streets, Public Road
Land Inclusions: For Sale Sign, Survey, Topographic Map
Lot: Irregular Lot, Tree Coverage - Heavy, Underground Utilities
Lot Dimensions: 650 x 1050 irreg
Topography: Gently Rolling
Utilities: Cable Available, Electricity Available, Natural Gas Available Connected, Private Well Available, Sewer Available, Phone Available, Underground Utilities Available
Wooded Acreage: 15.00

Local Schools

School District: Brainerd

Estimate Your Payment

Estimated Payment

$ 3,788.03 per month $3,539.41 Principal & Interest $54.67 Property Tax $193.96 Homeowner's Insurance

Change Payment Information

%
years/fixed
yearly
yearly (est.)
(Payments are an estimate and may vary by lender)

Near By

Demographics



By searching Listing Data you agree to this End User License Agreement

Copyright 2026 Regional Multiple Listing Service of Minnesota, Inc. All rights reserved.

Terms of Use

Agency License Information: Counselor Realty, Inc. is licensed in Minnesota and Wisconsin; Counselor Realty, Inc. of Alexandria is licensed in Minnesota; Counselor Realty Detroit Lakes, LLC is licensed in Minnesota; Counselor Realty of Rochester is licensed in Minnesota; Counselor Realty of Victoria, LLC is licensed in Minnesota; Counselor Realty of Brainerd is licensed in Minnesota.

Disclaimer: All information deemed reliable but not guaranteed. All properties are subject to prior sale, change or withdrawal. Neither listing broker(s) or information provider(s) shall be responsible for any typographical errors, misinformation, misprints and shall be held totally harmless. Listing(s) information is provided for consumers personal, non-commercial use and may not be used for any purpose other than to identify prospective properties consumers may be interested in purchasing. Information on this site was last updated 04/10/2026. The listing information on this page last changed on 04/10/2026. The data relating to real estate for sale on this website comes in part from the Internet Data Exchange program of Delta Media Group MLS (last updated Fri 04/10/2026 12:05:34 AM EST) or RMLS-MN MLS (last updated Fri 04/10/2026 12:02:35 AM EST). Real estate listings held by brokerage firms other than Counselor Realty may be marked with the Internet Data Exchange logo and detailed information about those properties will include the name of the listing broker(s) when required by the MLS. All rights reserved.

By searching Listing Data you agree to this End User License Agreement
© 2026 Regional Multiple Listing Service of Minnesota, Inc. All rights reserved.


Listing data and photos distributed by MLSGRID
Member Participants (and their affiliated licensees, if applicable) shall indicate on their websites that IDX information is provided exclusively for consumers’ personal non-commercial use, that it may not be used for any purpose other than to identify prospective properties consumers may be interested in purchasing, that the data is deemed reliable but is not guaranteed by MLS GRID, and that the use of the MLS GRID Data may be subject to an end user license agreement prescribed by the Member Participant’s applicable MLS if any and as amended from time to time. MLS GRID may, at its discretion, require use of other disclaimers as necessary to protect Member Participant, and/or their MLS from liability.
Based on information submitted to the MLS GRID. All data is obtained from various sources and may not have been verified by broker or MLS GRID. Supplied Open House Information is subject to change without notice. All information should be independently reviewed and verified for accuracy. Properties may or may not be listed by the office/agent presenting the information.



Privacy Policy / DMCA Notice / ADA Accessibility

Login to My Homefinder

Pixel